- Oct 21 Fri 2016 18:44
-
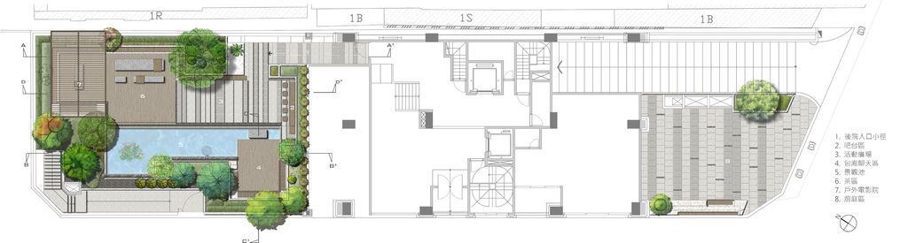
遊玩式現代地景
- Oct 07 Fri 2016 17:50
-
工業廠房辦公空間的禪意景觀

本案位於宜蘭工業區一座廠房內,中央方形空間提供員工休憩使用,四周圍密集繞辦公室、員工餐廳及佛堂,綠化較為缺乏。如何同時沉澱工業區嘈雜的環境氣氛與緊張的辦公步調,及呼應左側佛堂的設置,為此,富有禪意的日式庭園為本案主要的設計走向。
- Sep 10 Sat 2016 11:10
-
關於高齡化住宅景觀

商業周刊曾經做過調查:有一個世代,是台灣當時第一代中產階級,他們出生於戰後嬰兒潮時期。這群人平均介於50歲至64歲之間,除有著超越銀髮族與年輕人的消費力之外,時尚流行品味不亞於年輕人,是重視生活品質的族群,這群人將主導未來15年的消費市場。
- Apr 29 Fri 2016 15:45
-
Walking in the Cloud。大直豐匯
- Aug 10 Mon 2015 18:29
-
屋頂菜圃花園設計方案,向大師致敬!

屋頂農園是我們此次設計的一大特點,菜圃的加入以及各式果樹的種植讓增添生活趣味,提供住戶互相交流的平台,也為食安問題找到一個安心的出口。
關於設計形式的發想,這次我們嘗試結合當紅日本普洛藝術家草間彌生,和曾經獲得普利茲克獎肯定的日本建築師妹島和世兩位大師的作品意象,與景觀做一個突破性的結合,激發出特別的火花同時也挑戰業主的接受度!
- Jul 21 Tue 2015 14:02
-
入口雕塑 – 方案發展過程(二)
- Jun 30 Tue 2015 21:12
-
入口雕塑 – 方案發展過程(一)

地下停車場車道入口處,因後方枯萎行道樹的移除及1.2M消防設施箱體的設置,正好位於車行及人行來往的動線上,形成視覺上的突兀感。正好藉此機會特別採用設計手法來轉化,進而發展出以下方案:
〈光箱〉
- Dec 08 Mon 2014 10:16
-
極小、極密、極舒,THE BOUTIQUE HOUSE ----- { 台 大 J I A } Part 2
- Dec 05 Fri 2014 17:34
-
極小、極密、極舒,THE BOUTIQUE HOUSE ----- { 台 大 J I A } Part 1
- Nov 17 Mon 2014 15:45
-
信義君悅 {柏悅府} ----- (二) 中方與西方融合的現代庭園
- Oct 24 Fri 2014 17:36
-
信義君悅 {柏悅府} ----- (一) 向顏家陋園致敬





